Tufnell Park Road, Camden



Double back extension, loft & basement conversion



Open Plan, Play area, Outside hosting space, Home office, Increase storage space, Increase natural light



255m2 / 2744f2



London, United Kingdom
Tufnell Park Road, Camden






Double back extension, loft & basement conversion



Open Plan, Play area, Outside hosting space, Home office, Increase storage space, Increase natural light



255m2 / 2744f2



London, United Kingdom
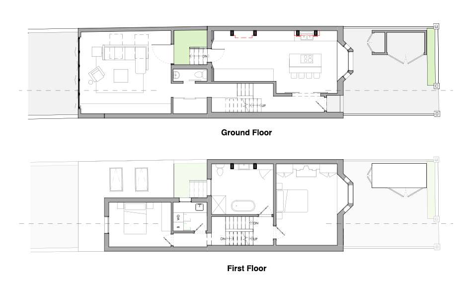
Having recently secured this dated victorian 3-storey terrace property in north london, our client was keen to make full use of the sizeable plot.
LIKE THIS PROJECT?
With ambitious goals, we were given a free hand to use the plot to its’ potential and create a dream home for the client and his family. After locking down the size and location of the double back and wrap around extension, we created a separate home office unit at the back of the garden. By using large windows and a skylights, we’ve made sure that there was ample natural light. Converting the attic and basement into a living spaces, we’ve made full use of every square meter. We also removed the wall separating the front two rooms on the ground floor and created a light and airy open-plan space that also encourages more interaction. Purpose built storage space was spread generously around the house as well as some personal touches chosen by the client such as a Turkish hammam style bath and a sociable cooking style kitchen area which allows for socialising the food being prepared.





