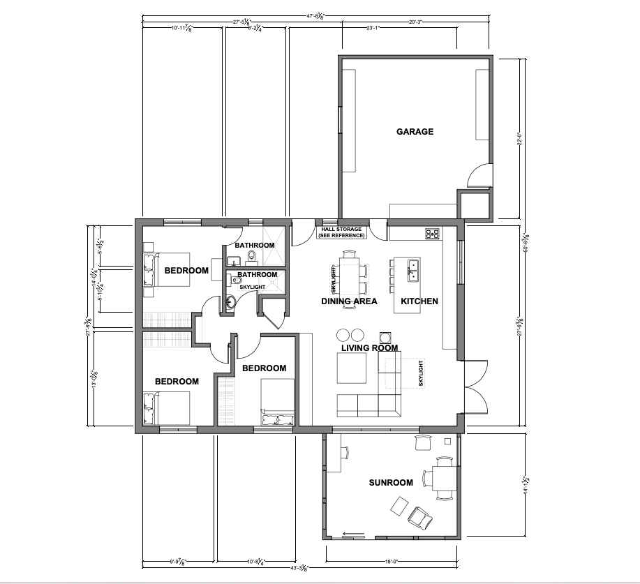
Sandalwood Street, Newark



Side extension, layout redesign



Add light, better flow



253m2 / 2723f2



London, United Kingdom
Sandalwood Street, Newark






Side extension, layout redesign



Add light, better flow



253m2 / 2723f2



London, United Kingdom
This Early 19th century Edwardian terraced house in north London had a dysfunctional, old, over-divided ground floor in need of comprehensive re-layout thinking. It also had a potential opportunity for an extension. Extending and refurbishing terraced houses while keeping as much of the original features as possible or required often results is spectacularly mixed and eclectic end-design of old and new.
LIKE THIS PROJECT?
With ambitious goals, we were given a free hand to use the plot to its’ potential and create a dream home for the client and his family. After locking down the size and location of the double back and wrap around extension, we created a separate home office unit at the back of the garden. By using large windows and a skylights, we’ve made sure that there was ample natural light. Converting the attic and basement into a living spaces, we’ve made full use of every square meter. We also removed the wall separating the front two rooms on the ground floor and created a light and airy open-plan space that also encourages more interaction. Purpose built storage space was spread generously around the house as well as some personal touches chosen by the client such as a Turkish hammam style bath and a sociable cooking style kitchen area which allows for socialising the food being prepared.








