Mattison Road, Finsbury Park



Side extension, layout redesign



Add light, better flow



253m2 / 2723f2



London, United Kingdom
Mattison Road, Finsbury Park






Side extension, layout redesign



Add light, better flow



253m2 / 2723f2



London, United Kingdom
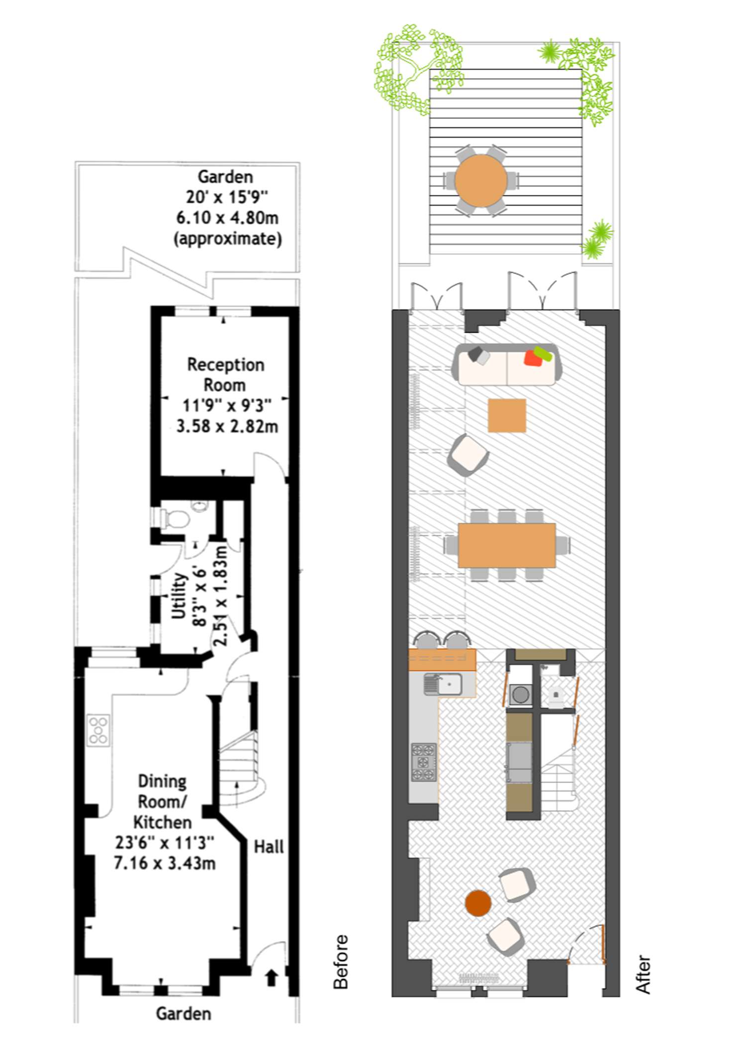
This Early 19th century Edwardian terraced house in north London had a dysfunctional, old, over-divided ground floor in need of comprehensive re-layout thinking. It also had a potential opportunity for an extension. Extending and refurbishing terraced houses while keeping as much of the original features as possible or required often results is spectacularly mixed and eclectic end-design of old and new.
LIKE THIS PROJECT?
When the owner of this typical London property contacted us, he had already secured permission for a side extension, right off the living room, which was a great opportunity for the BetterSpace design team to really be imaginative.
When building an extension, there are many different types of building materials to choose from. Very often, owners prefer or are required to use lightweight materials such as glass due to its lesser visual obstructions to neighboring houses. This allows the architect to open up the space as much as possible and allow maximum natural light exposure.
The client asked BetterSpace to redesign the ground floor only, combining the existing space with the new addition into one big open space with as much uninterrupted flow as possible.
Originally, the ground floor was small and consisted of many divided spaces: a dining room, a separate kitchen, a small living room, and a utility room with side access to the garden.
‘There was definitely much room for improvement,’ says Avi, head of the BetterSpace design team.
The final result could not have been more different. ‘We first had to remove many walls.’ At the front of the house, the walls between the entrance corridor and the dining room and between the dining room and kitchen were eliminated to achieve maximum openness.
The utility room was also removed, which allowed the design team to turn the entire rear of the house, now newly extended, into a large 355 square foot space that opens into the garden. ‘The direct and beautiful link between the inside and the outside was a well-desired feature. The extended area receives plenty of natural light from the extension’s glass roof, and this “public” space has become the heart of the house.’
We considered a few possible locations for a new kitchen, including in the large open space at the back. In the end, the kitchen was left in its original location due mainly to budget restrictions. However, now it is open and flows beautifully directly into the large and airy living-dining space at the back.
In the kitchen, the wall across from the countertop was designed with floor-to-ceiling cabinets. ‘As the kitchen is now open to the living space, we wanted to be sure that it is as tidy as possible. We chose a storage solution that provides ample storage as well as hides all large fittings such as the fridge. Now that the utility room was removed, this wall of cabinets also houses the washing machine.’
As a bonus, the designers managed to squeeze in a compact yet adequate guest toilet in the very limited space under the stairs, comprising a specifically selected compact toilet and sink.





