Long Prairie, Minnesota



Layout redesign



Optimise small space and low budget



82m2 / 882f2



Minnesota, USA
Long Prairie, Minnesota






Layout redesign



Optimise small space and low budget



82m2 / 882f2



Minnesota, USA
A challenging long and skinny room with a direct entrance offered a great opportunity for optimising the flow and function for Shannon and her family
LIKE THIS PROJECT?
Our client, Shannon, from Long Prairie, Minnesota, had a goal to optimize the flow and function of her family’s home. After a few attempts to redesign the layout herself, she was eager to hear a professional opinion and asked us to approach her space with a blank slate.
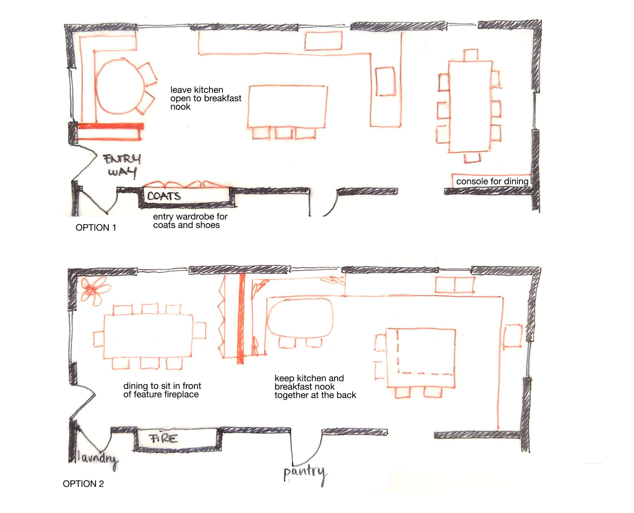
The space was challenging – a really long and narrow room with a direct entrance from the outside and an awkward log wall with a notched-out area.
Keen to turn disadvantage into opportunity, we suggested relocating the kitchen entirely, an idea which Shannon was open to.
We proposed a few options incorporating space for an entryway, and making use of the laundry area for storing coats and shoes to eliminate the mess. We added a low-level wall that does not block the daylight and a console table for keys.
The kitchen opens to the breakfast nook, as we wanted everything to flow smoothly between each space.
The feature fireplace offers a great spot for entertaining guests. Shannon loved the new design, which she admitted gave her many ideas she had not considered herself.





