Esmond Road, Ealing



Wraparound Extension



Open plan, home office, courtyard, add storage space, add natural light



75m2 / 807f2



London, United Kingdom
Esmond Road, Ealing






Wraparound Extension



Open plan, home office, courtyard, add storage space, add natural light



75m2 / 807f2



London, United Kingdom
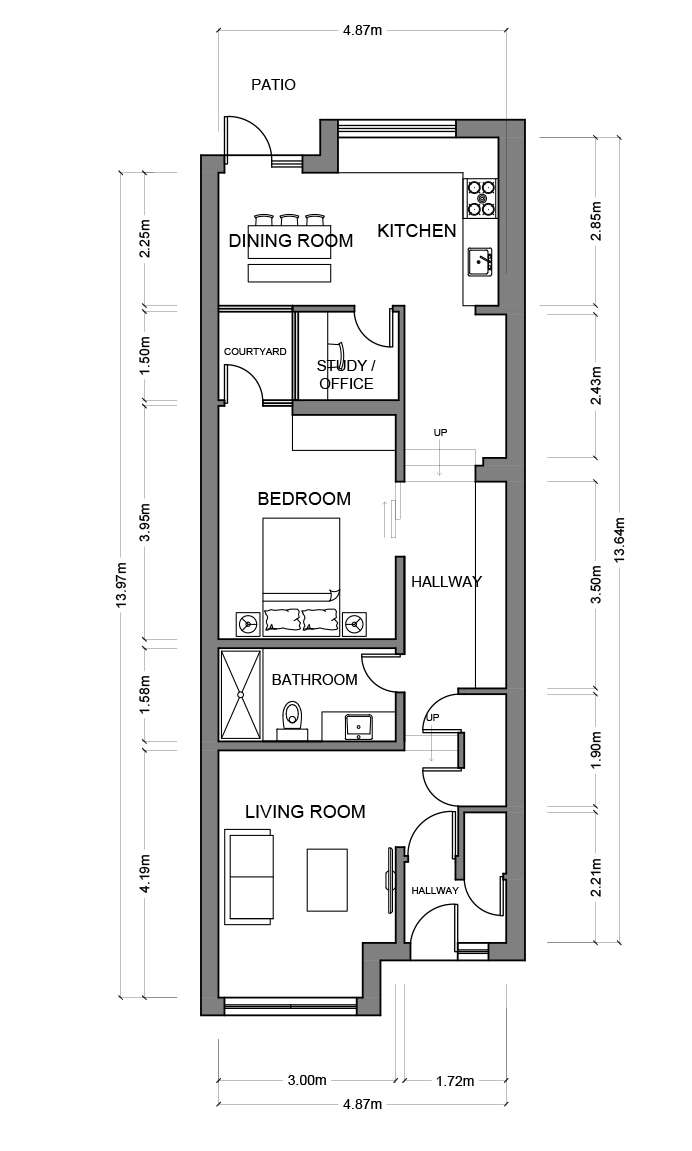
Our client was not completely satisfied with the plans they had submitted to Ealing council for their home renovation project. They asked BetterSpace to come up with a new approach for their interior planning. Having just bought this small and rather dark downstairs apartment, increasing natural light and creating functional and separate zones was on top of our client's priorities.
LIKE THIS PROJECT?
With her partner working from home, it was essential to create a private working space that was separate from the resting area. Space was limited, so combining the kitchen with the dining area into an open-plan space was a great way to optimize the space as well as maximize the home’s value.
With a significant reduction of the outdoor space, the client wanted to ensure ample natural light by retaining a courtyard and creating big doors to the garden that ensured an airy kitchen with a dining space.
The result was a beautifully designed space that met all of our client’s requirements in a perfect balance between their vision and what was feasible. Our client was thrilled with the outcome and felt that the renovation had maximized the value of her home and made it more attractive to potential buyers.









